• Featured
  • Kauf

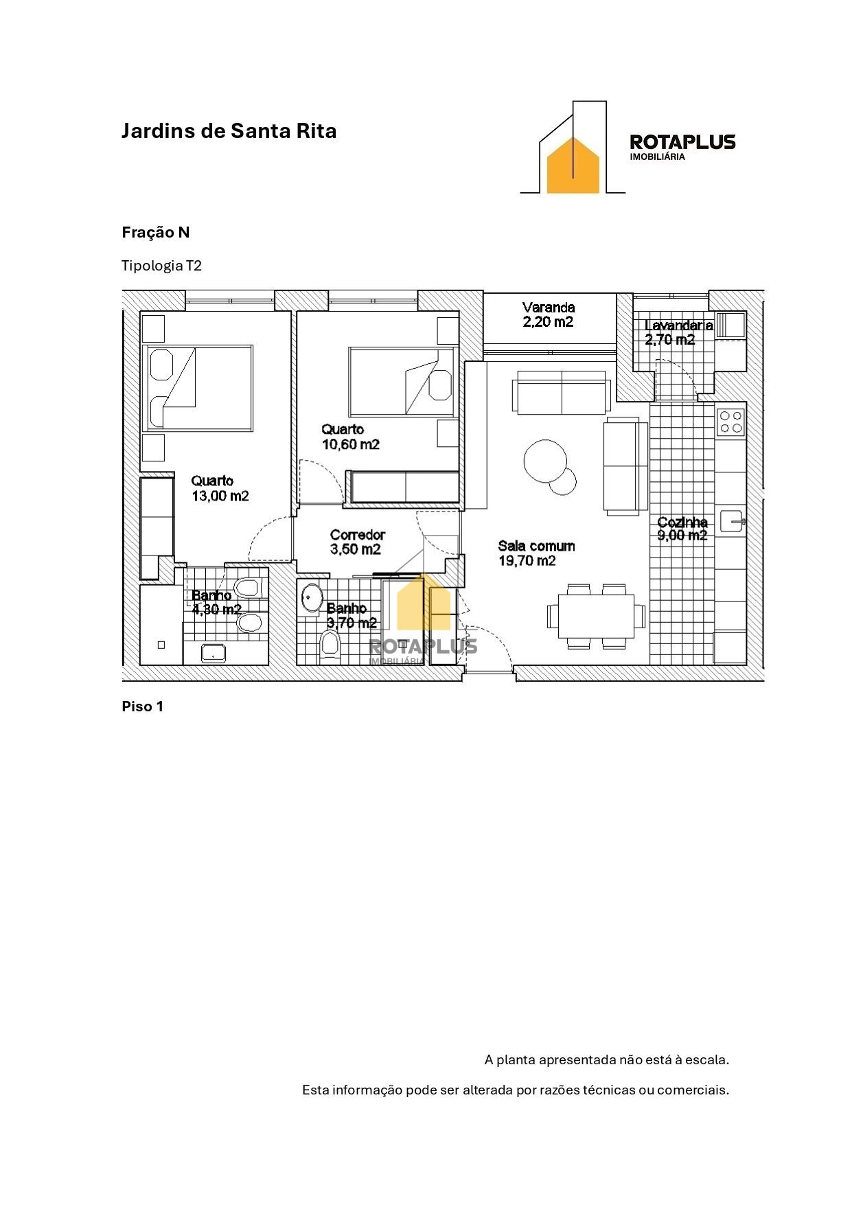
Wohnung T2

Valongo > Ermesinde

245 000€

70,00 m²

Mehr Details

Ref.
1001-497
Immobilien
Wohnung
Zimmer
2
WC
2
Garage
1
Wohnbereich
70,00 m²
Landfläche
0,00 m²
Bruttofläche
88,00 m²
Bezirk
Porto
Landkreis
Valongo
Gemeinde
Ermesinde
Baujahr
2027
Energetisches Zertifikat
A.png

Beschreibung

Zeichen

  • Klimaanlage
  • Ausgestattete Küche
  • Fahrstuhl
  • Backofen
  • Rohrgas
  • Gaz naturel
  • Geschirrspüler
  • Mikrowelle
  • Hochsicherheitstür
  • Elektrisches Tor
  • Schränke
  • Beheizte Handtuchhalter
  • Video-Gegensprechanlage
  • Doppelverglasung
  • Garage

Räume

Keine Abteilungen

Siehe Projekt

Ähnliche Eigenschaften